Tikko pievienots jūsu grozam

Turpināt iepirkties

Divstatņu autopacēlājs 4,2t

kods: EE-62C.42T.EV3-Elbow
ražotājs: HCT Automotive
ir noliktavā, 2 gab.
347000Summa bez PVN 2867.77 €
 



Esto 3

3 x 1,156.67€


    Preču cena norādīta ar iekļautu PVN 21%

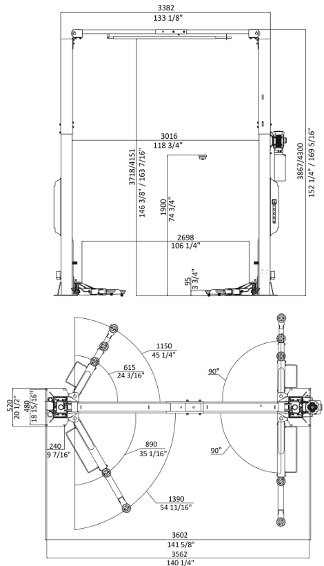
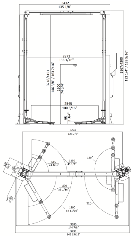
    Elektrohidrauliskais autopacēlājs ar elektromagnētiskiem drošības slēdžiem un 3-daļīgām priekšējām atbalsta rokām, kas aprīkotas ar Elbow arms vēl ērtākai auto izvietošanai uz pacēlāja

    Pacēlāju iespējams uzstādīt simetriski un asimetriski(sk.attēlus), kā arī statņu augstums var tikt nofiksēts 3867mm vai 4300mm augstumā

    5/2/2 garantijas politika!
    - 5 gadi uz pacēlāja korpusu
    - 2 gadi uz hidrauliskajām daļām
    - 2 gadi uz elektriskajām daļām

    Parametri

    Atstatums starp statnēm2872 / 3016mm
    Celtspēja4,2t
    Min. augstums95mm
    Pacelšanas augstums1900mm
    Pacelšanas laiks35s
    Statnes augstums3867mm / 4300mm