Elektrohidraulisks iegremdējams šķērveida pacēlājs
- Hydraulic platforms’ synchronization
- 2 independent hydraulic circuits
- Overload safety valve
- Safety valve in the event of sudden loss of pressure
- Manual descent system in the event of power failures
- “Dead man” controls 24V
- Front recesses
- Lateral guides for Jacking Beams
- Acoustic warning in the last portion of descent
- Mechanical locks between the cylinders for a perfect levelling of the platforms – OPTION 1: recessed installation kit – OPTION 2: on floor installation kit
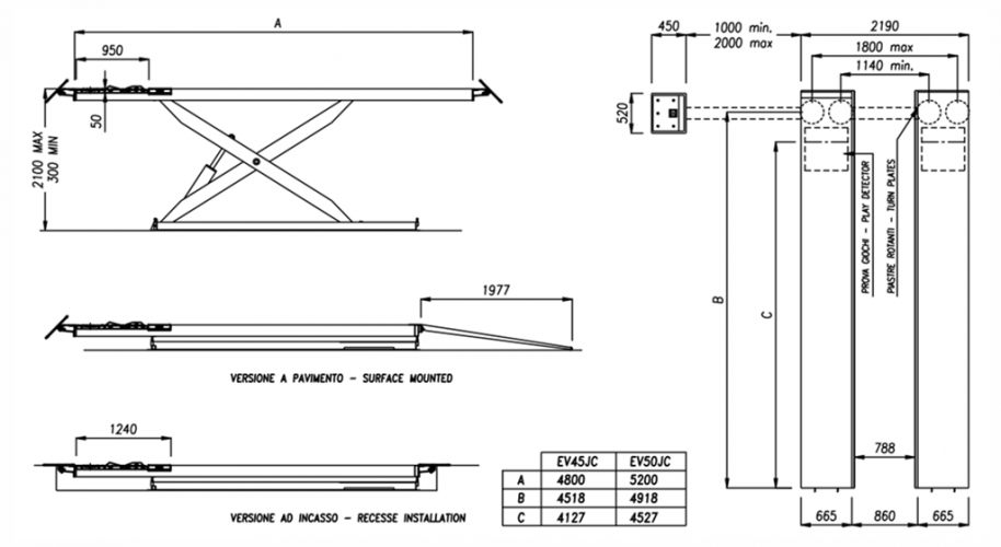
Parametrai
| Aukštis | 330 mm | 
| Keliamoji galia | 4500 kg | 
| Elektrinis maitinimas | 230-400V/50 Hz | 
| Maksimalus aukštis | 2100 mm | 
| Variklio galia | 4 kW | 
| Pakėlimo laikas | 40/30 s | 
| Svoris | 1400-1500 kg | 
 Automobilių remonto įranga
Automobilių remonto įranga Savaeigiai keltuvai
Savaeigiai keltuvai Priekabos
Priekabos Speciali technika
Speciali technika Kranai
Kranai Konteineriai ir bakai
Konteineriai ir bakai Dovanų idėjos
Dovanų idėjos 
        



